Wisma Kemajuan near to Menara Amfirst, Section 19, Petaling Jaya
Jalan 19/1, Section 19, Selangor
RM 60,800 /mo
24,255
kps (lantai)
Gambar
Paparan Peta
Tentang Wisma Kemajuan near to Menara Amfirst
Warehouse for Rent
Daniel Leong - E 3017
Registered Estate Agent
Mobile: +6 016_289_9267
Wisma Kemajuan is an ideal solution for businesses with storage needs and located within the industrial area of Section 19, Petaling Jaya.
Wisma Kemajuan offers both office & warehouse spaces (Loading bays can accommodate 40' container with electronic ramp).
Other landmarks within the immediate vicinity include UMW Toyota Sales, Service and Spares centre, Jaya One, Menara AmFIRST and British American Tobacco (BAT).
Available Office Spaces for Rental:-
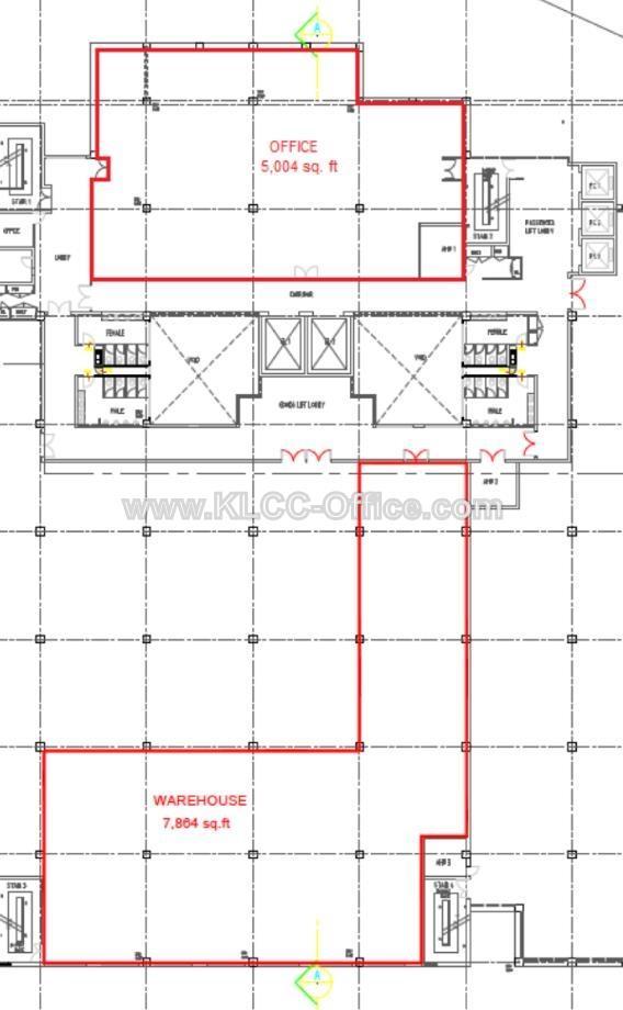
Office (Level 1): 11,562 sq feet
Office (Level 2): 5,004 sq feet
Office (Level 3): 5,136 sq feet
Office (Level 4): 3,100 sq feet
Office (Level 4): 5,136 sq feet
Office (Level 5): 2,737 sq feet
Office (Level 5): 7,620 sq feet
Available Warehouse Spaces for Rental:-
Warehouse (Level 5): 24,255 sq feet
If you wish to view any of the office spaces, please call Daniel @ 0***** for an exclusive viewing appointment today.
Property Details
• Location: Jalan 19/1
• Rental Price: RM3.80psf for Office and RM2.50psf for Warehouse
• Furnishing: Bare Unit
• Facilities: 24-hour security
Covered car park
Centralized air conditioning
CCTV monitoring
High speed internet and many more
Strategic Location / Easy Accessibility
1. Well connected via the Federal Highway, LDP or Lebuhraya SPRINT
2. Near to SS17, SS2 and Damansara area
3. 5 minutes drive to Asia Jaya Putra LRT
Registered Estate Agent
Mobile: +6 016_289_9267
Wisma Kemajuan is an ideal solution for businesses with storage needs and located within the industrial area of Section 19, Petaling Jaya.
Wisma Kemajuan offers both office & warehouse spaces (Loading bays can accommodate 40' container with electronic ramp).
Other landmarks within the immediate vicinity include UMW Toyota Sales, Service and Spares centre, Jaya One, Menara AmFIRST and British American Tobacco (BAT).
Available Office Spaces for Rental:-
Office (Level 1): 11,562 sq feet
Office (Level 2): 5,004 sq feet
Office (Level 3): 5,136 sq feet
Office (Level 4): 3,100 sq feet
Office (Level 4): 5,136 sq feet
Office (Level 5): 2,737 sq feet
Office (Level 5): 7,620 sq feet
Available Warehouse Spaces for Rental:-
Warehouse (Level 5): 24,255 sq feet
If you wish to view any of the office spaces, please call Daniel @ 0***** for an exclusive viewing appointment today.
Property Details
• Location: Jalan 19/1
• Rental Price: RM3.80psf for Office and RM2.50psf for Warehouse
• Furnishing: Bare Unit
• Facilities: 24-hour security
Covered car park
Centralized air conditioning
CCTV monitoring
High speed internet and many more
Strategic Location / Easy Accessibility
1. Well connected via the Federal Highway, LDP or Lebuhraya SPRINT
2. Near to SS17, SS2 and Damansara area
3. 5 minutes drive to Asia Jaya Putra LRT
Kemudahan bersama
24-hour security
Parking
Soalan Lazim
Harga sewaan ialah RM 60,800 /mo.
Jalan 19/1, Section 19, Selangor.
Saiz lantai unit ini ialah 24,255 kps.
Berikut merupakan 10 perkara yang anda perlu tahu sebelum menyewa termasuk deposit sekuriti, perjanjian sewaan, duti setem, dan caj lain-lain.













